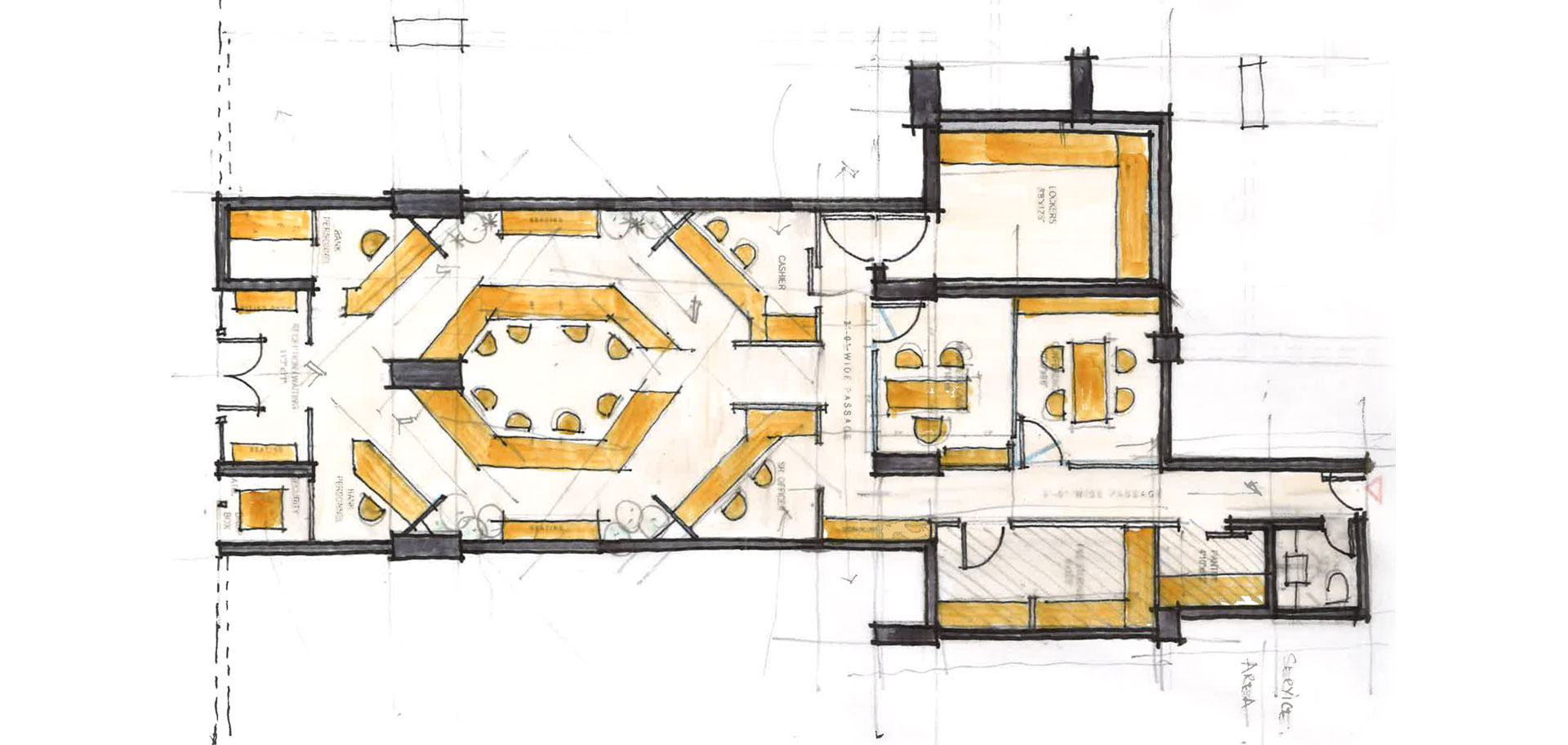
Zorashtrian Bank, Surat

Roksana & Anosh Architecture, India

KNOW MORE